M. -E. KÖHLER
Dipl. - Ing. Architektin



Startseite
Home
Ausgewählte Projekte
Projekte
Projektliste
Projektliste
Lebenslauf
Vita
Kontakt / Impressum
Kontakt


MÖCKERNSTR 70, 10965 BERLIN


Axonometrie

Schnitt
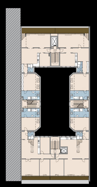
Möckernstraße, 3.OG
Normalgeschoß

Dachgeschoß
weitere Bilder
mehr